Top.Mail.Ru

улица Бестужевых, д. 12

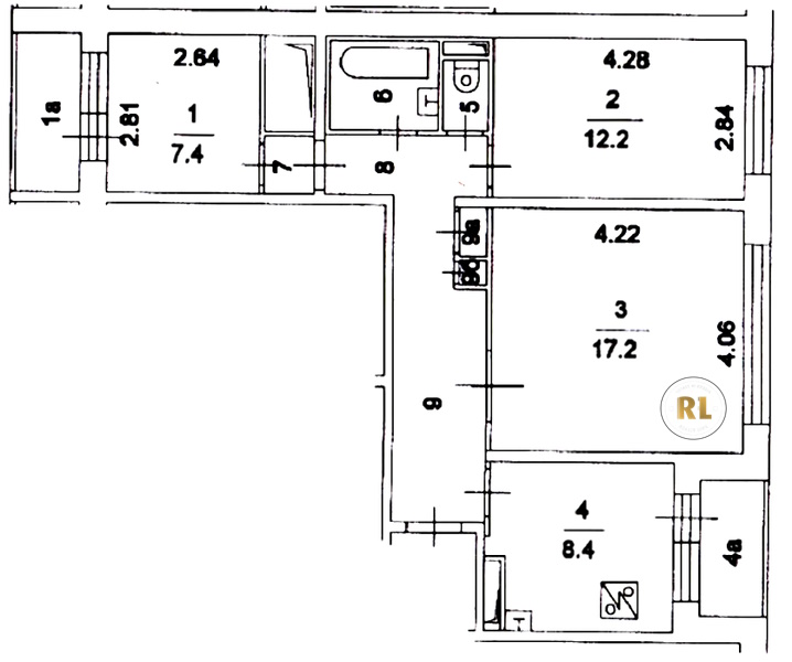
База каталог, Кол-во подъездов: 7, П-30, Москва, Отрадное, Площадь парковки: 0, Пассажирский лифт: 14, От метро: 840, Северо-Восточный, нет, Наименьшее кол-во этажей: 12, Наибольшее кол-во этажей: 12, Отрадное, Кол-во помещений: 333, Кол-во нежилых помещений: 1, Год ввода в эксплуатацию: 1976, 3-комн, Кол-во жилых помещений: 332, Не присвоен, дом 12, нет, да, да, да, да, да, Имеется, Грузовых лифтов: 0, Год постройки: 1976, улица Бестужевых, 37.607942, 55.870440
Свяжитесь со мной на счет цены
10 дн.
T55S870440L37S607942T

На карте


Условия сделки

Источник


Старт продаж

Возможно заинтересует