Top.Mail.Ru

улица Менжинского, д. 38, к. 2

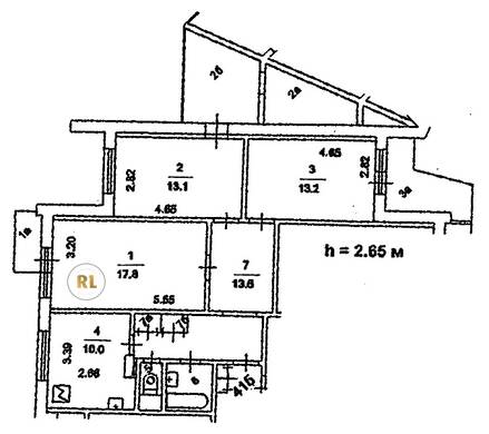
База каталог, Кол-во подъездов: 2, Имеется, П-3-2/16, Москва, Бабушкинский, Площадь парковки: 8294, Пассажирский лифт: 2, От метро: 263, Северо-Восточный, да, Наименьшее кол-во этажей: 16, Наибольшее кол-во этажей: 16, Бабушкинская, Кол-во помещений: 129, Кол-во нежилых помещений: 1, Год ввода в эксплуатацию: 1980, 3-комн, Кол-во жилых помещений: 128, E, дом 38, корпус 2, да, да, да, да, да, да, Имеется, Грузовых лифтов: 2, Год постройки: 1980, улица Менжинского, 37.660745, 55.870996
Свяжитесь со мной на счет цены
10 дн.
T55S870996L37S660745T

На карте


Условия сделки

Источник


Старт продаж

Возможно заинтересует