Top.Mail.Ru

проезд Дежнева, д. 30

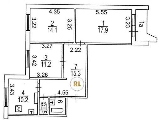
База каталог, Кол-во подъездов: 2, Имеется, П-44-1/17, Москва, Южное Медведково, Пассажирский лифт: 2, От метро: 2070, Северо-Восточный, да, Наименьшее кол-во этажей: 17, Наибольшее кол-во этажей: 17, Бабушкинская, Кол-во помещений: 438, Кол-во нежилых помещений: 310, Год ввода в эксплуатацию: 2016, 3-комн, Кол-во жилых помещений: 128, дом 30, нет, да, да, да, нет, нет, Имеется, Грузовых лифтов: 2, Год постройки: 2016, проезд Дежнева, 37.633059, 55.871460
Свяжитесь со мной на счет цены
10 дн.
T55S871460L37S633059T

На карте


Условия сделки

Источник


Старт продаж

Возможно заинтересует