Top.Mail.Ru

Изумрудная ул., д. 9

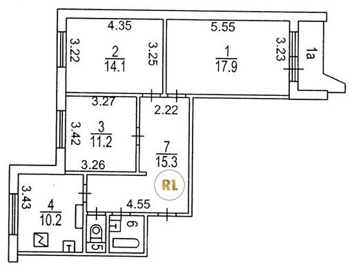
База каталог, Кол-во подъездов: 5, П-44/16, Москва, Лосиноостровский, Площадь парковки: 0, Пассажирский лифт: 5, От метро: 1110, Северо-Восточный, нет, Наименьшее кол-во этажей: 17, Наибольшее кол-во этажей: 17, Бабушкинская, Кол-во помещений: 341, Кол-во нежилых помещений: 2, Год ввода в эксплуатацию: 1984, 3-комн, Кол-во жилых помещений: 339, Не присвоен, дом 9, нет, да, да, да, да, нет, Имеется, Грузовых лифтов: 5, Год постройки: 1984, Изумрудная улица, 37.679547, 55.871652
Свяжитесь со мной на счет цены
10 дн.
T55S871652L37S679547T

На карте


Условия сделки

Источник


Старт продаж

Возможно заинтересует