Top.Mail.Ru

улица Летчика Бабушкина, д. 33, к. 3

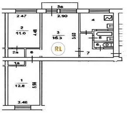
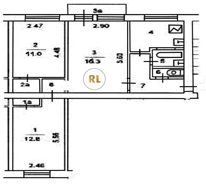
База каталог, Кол-во подъездов: 4, Имеется, I-511, Москва, Бабушкинский, Площадь парковки: 0, Пассажирский лифт: 0, От метро: 730, Северо-Восточный, нет, Наименьшее кол-во этажей: 5, Наибольшее кол-во этажей: 5, Бабушкинская, Кол-во помещений: 82, Кол-во нежилых помещений: 4, Год ввода в эксплуатацию: 1975, 3-комн, Кол-во жилых помещений: 78, E, дом 33, корпус 3, нет, да, да, да, да, да, Имеется, Грузовых лифтов: 0, Год постройки: 1975, улица Летчика Бабушкина, 37.673834, 55.871981
Свяжитесь со мной на счет цены
10 дн.
T55S871981L37S673834T

На карте


Условия сделки

Источник


Старт продаж

Возможно заинтересует