Top.Mail.Ru

Зеленоградская ул., д. 23, к. 1

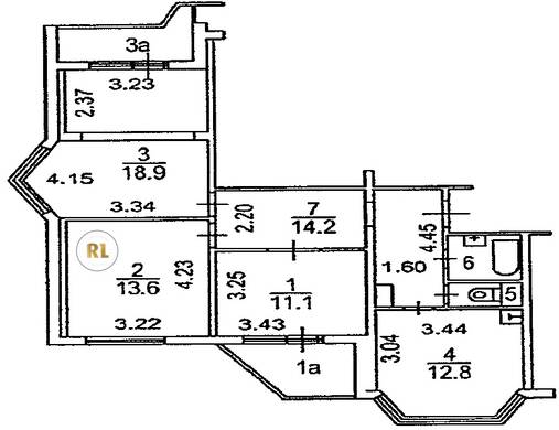
База каталог, Кол-во подъездов: 3, Отсутствует, П-44T, Москва, Ховрино, Площадь парковки: 0, Пассажирский лифт: 3, От метро: 1300, Северный, нет, Наименьшее кол-во этажей: 14, Наибольшее кол-во этажей: 14, Ховрино, Кол-во помещений: 170, Кол-во нежилых помещений: 4, Год ввода в эксплуатацию: 2002, 3-комн, Кол-во жилых помещений: 166, E, дом 23, корпус 1, нет, да, да, да, да, нет, Имеется, Грузовых лифтов: 3, Год постройки: 2002, Зеленоградская улица, 37.495851, 55.872370
15 000 000 Р
10 дн.
T55S872370L37S495851T
+

На карте


Условия сделки

Источник


Старт продаж