Top.Mail.Ru

улица Летчика Бабушкина, д. 35, к. 2

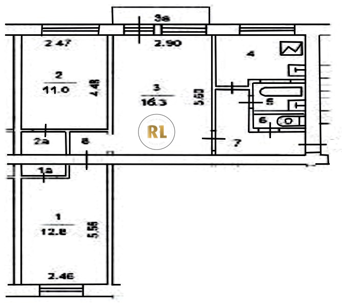
База каталог, Кол-во подъездов: 3, Имеется, I-511, Москва, Бабушкинский, Площадь парковки: 0, Пассажирский лифт: 0, От метро: 880, Северо-Восточный, нет, Наименьшее кол-во этажей: 5, Наибольшее кол-во этажей: 5, Бабушкинская, Кол-во помещений: 60, Кол-во нежилых помещений: 0, Год ввода в эксплуатацию: 1964, 3-комн, Кол-во жилых помещений: 60, E, дом 35, корпус 2, нет, да, да, да, да, да, Имеется, Грузовых лифтов: 0, Год постройки: 1964, улица Летчика Бабушкина, 37.675154, 55.872556
Свяжитесь со мной на счет цены
10 дн.
T55S872556L37S675154T

На карте


Условия сделки

Источник


Старт продаж

Возможно заинтересует