Top.Mail.Ru

проезд Дежнева, д. 22, к. 4

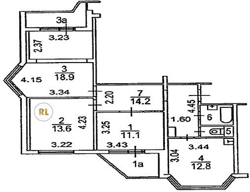
База каталог, Кол-во подъездов: 2, П-44T, Москва, Южное Медведково, Площадь парковки: 0, Пассажирский лифт: 2, От метро: 2110, Северо-Восточный, нет, Наименьшее кол-во этажей: 17, Наибольшее кол-во этажей: 17, Бабушкинская, Кол-во помещений: 130, Кол-во нежилых помещений: 2, Год ввода в эксплуатацию: 2008, 3-комн, Кол-во жилых помещений: 128, Не присвоен, дом 22, корпус 4, нет, да, да, нет, нет, нет, Имеется, Грузовых лифтов: 2, Год постройки: 2008, проезд Дежнева, 37.634218, 55.872632
Свяжитесь со мной на счет цены
10 дн.
T55S872632L37S634218T

На карте


Условия сделки

Источник


Старт продаж

Возможно заинтересует