Top.Mail.Ru

Изумрудная ул., д. 13, к. 1

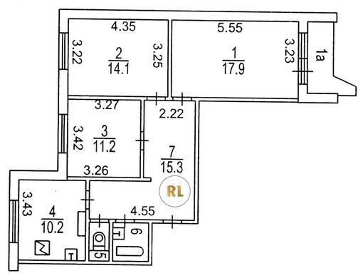
База каталог, Кол-во подъездов: 4, П-44, Москва, Лосиноостровский, Пассажирский лифт: 4, От метро: 1440, Северо-Восточный, да, Наименьшее кол-во этажей: 17, Наибольшее кол-во этажей: 17, Бабушкинская, Кол-во помещений: 271, Кол-во нежилых помещений: 0, Год ввода в эксплуатацию: 1988, 3-комн, Кол-во жилых помещений: 271, дом 13, корпус 1, нет, да, да, да, да, нет, Отсутствует, Грузовых лифтов: 4, Год постройки: 1988, Изумрудная улица, 37.683257, 55.872683
Свяжитесь со мной на счет цены
10 дн.
T55S872683L37S683257T

На карте


Условия сделки

Источник


Старт продаж

Возможно заинтересует