Top.Mail.Ru

Изумрудная ул., д. 13, к. 2

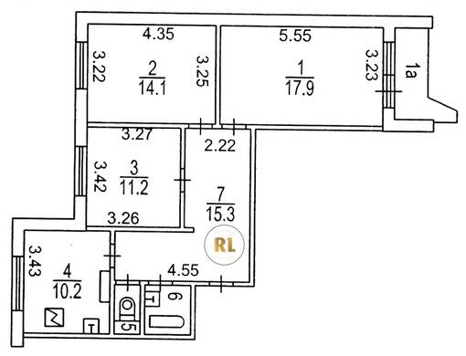
База каталог, Кол-во подъездов: 4, П-44, Москва, Лосиноостровский, Площадь парковки: 0, Пассажирский лифт: 4, От метро: 1340, Северо-Восточный, нет, Наименьшее кол-во этажей: 17, Наибольшее кол-во этажей: 17, Бабушкинская, Кол-во помещений: 274, Кол-во нежилых помещений: 3, Год ввода в эксплуатацию: 1984, 3-комн, Кол-во жилых помещений: 271, Не присвоен, дом 13, корпус 2, нет, да, да, да, да, нет, Имеется, Грузовых лифтов: 4, Год постройки: 1984, Изумрудная улица, 37.681209, 55.873238
Свяжитесь со мной на счет цены
10 дн.
T55S873238L37S681209T

На карте


Условия сделки

Источник


Старт продаж

Возможно заинтересует