Top.Mail.Ru

улица Летчика Бабушкина, д. 42

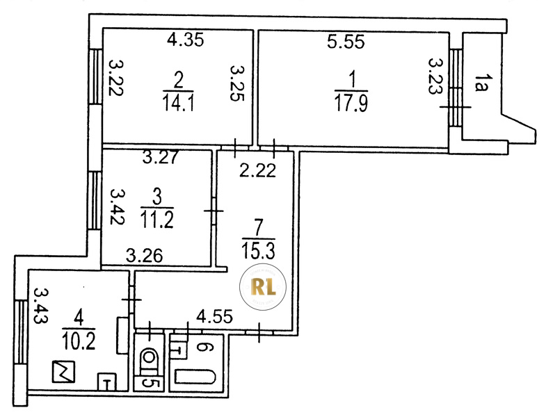
База каталог, Кол-во подъездов: 4, П-44, Москва, Лосиноостровский, Пассажирский лифт: 4, От метро: 1200, Северо-Восточный, да, Наименьшее кол-во этажей: 17, Наибольшее кол-во этажей: 17, Бабушкинская, Кол-во помещений: 265, Кол-во нежилых помещений: 5, Год ввода в эксплуатацию: 1988, 3-комн, Кол-во жилых помещений: 260, дом 42, нет, да, да, да, да, нет, Грузовых лифтов: 4, Год постройки: 1988, улица Летчика Бабушкина, 37.679305, 55.873541
19 900 000 Р
10 дн.
T55S873541L37S679305T
+

На карте


Условия сделки

Источник


Старт продаж

Возможно заинтересует