Top.Mail.Ru

проезд Шокальского, д. 3, к. 1

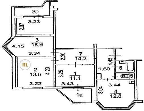
База каталог, Кол-во подъездов: 5, П-44T, Москва, Южное Медведково, Площадь парковки: 0, Пассажирский лифт: 5, От метро: 1400, Северо-Восточный, нет, Наименьшее кол-во этажей: 17, Наибольшее кол-во этажей: 17, Бабушкинская, Кол-во помещений: 341, Кол-во нежилых помещений: 15, Год ввода в эксплуатацию: 2005, 3-комн, Кол-во жилых помещений: 326, Не присвоен, дом 3, корпус 1, нет, да, да, да, да, нет, Грузовых лифтов: 5, Год постройки: 2005, проезд Шокальского, 37.645249, 55.873829
Свяжитесь со мной на счет цены
10 дн.
T55S873829L37S645249T

На карте


Условия сделки

Источник


Старт продаж

Возможно заинтересует