Top.Mail.Ru

Новая ул., д. 3

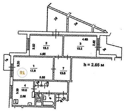
База каталог, Кол-во подъездов: 2, П-3/22, Москва, Западное Дегунино, Площадь парковки: 0, Пассажирский лифт: 2, От метро: 2490, Северный, нет, Наименьшее кол-во этажей: 17, Наибольшее кол-во этажей: 17, Ховрино, Кол-во помещений: 137, Кол-во нежилых помещений: 1, Год ввода в эксплуатацию: 1989, 3-комн, Кол-во жилых помещений: 136, E, дом 3, нет, да, да, нет, нет, нет, Имеется, Грузовых лифтов: 2, Год постройки: 1989, Новая улица, 37.509757, 55.873945
Свяжитесь со мной на счет цены
10 дн.
T55S873945L37S509757T

На карте


Условия сделки

Источник


Старт продаж

Возможно заинтересует