Top.Mail.Ru

проезд Шокальского, д. 5

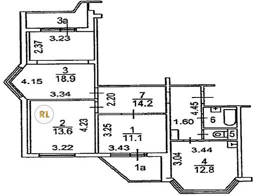
База каталог, Кол-во помещений: 201, П-44T, Москва, Южное Медведково, Площадь парковки: 0, Пассажирский лифт: 3, От метро: 1530, Северо-Восточный, нет, Наименьшее кол-во этажей: 0, Наибольшее кол-во этажей: 17, Бабушкинская, Кол-во подъездов: 3, Год ввода в эксплуатацию: 2005, Кол-во нежилых помещений: 0, 3-комн, Кол-во жилых помещений: 201, дом 5, нет, да, да, да, да, нет, Грузовых лифтов: 3, Год постройки: 2005, проезд Шокальского, 37.643920, 55.874006
Свяжитесь со мной на счет цены
10 дн.
T55S874006L37S643920T

На карте


Условия сделки

Источник


Старт продаж

Возможно заинтересует