Top.Mail.Ru

Полярная ул., д. 9, к. 2

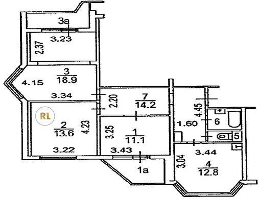
База каталог, Кол-во подъездов: 5, Имеется, П-44К, Москва, Южное Медведково, Пассажирский лифт: 5, От метро: 2400, Северо-Восточный, да, Наименьшее кол-во этажей: 17, Наибольшее кол-во этажей: 17, Бабушкинская, Кол-во помещений: 328, Кол-во нежилых помещений: 1, Год ввода в эксплуатацию: 2013, 3-комн, Кол-во жилых помещений: 327, Не присвоен, дом 9, корпус 2, нет, да, да, нет, нет, нет, Имеется, Грузовых лифтов: 5, Год постройки: 2012, Полярная улица, 37.633508, 55.874314
Свяжитесь со мной на счет цены
10 дн.
T55S874314L37S633508T

На карте


Условия сделки

Источник


Старт продаж

Возможно заинтересует