Top.Mail.Ru

Весенняя ул., д. 14

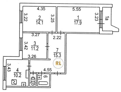
База каталог, Кол-во помещений: 128, Имеется, П-44, Москва, Западное Дегунино, Площадь парковки: 0, Пассажирский лифт: 2, От метро: 2720, Северный, нет, Наименьшее кол-во этажей: 17, Наибольшее кол-во этажей: 17, Селигерская, Кол-во подъездов: 2, Год ввода в эксплуатацию: 1989, Кол-во нежилых помещений: 0, 3-комн, Кол-во жилых помещений: 128, дом 14, нет, да, нет, нет, нет, нет, Имеется, Грузовых лифтов: 2, Год постройки: 1989, Весенняя улица, 37.513826, 55.874334
Свяжитесь со мной на счет цены
10 дн.
T55S874334L37S513826T

На карте


Условия сделки

Источник


Старт продаж

Возможно заинтересует