Top.Mail.Ru

Путевой проезд, д. 14, к. 1

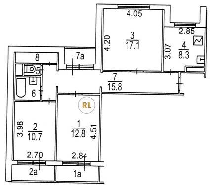
База каталог, Кол-во подъездов: 5, П-55, Москва, Алтуфьевский, Площадь парковки: 457, Пассажирский лифт: 10, От метро: 2400, Северо-Восточный, да, Наименьшее кол-во этажей: 14, Наибольшее кол-во этажей: 14, Бибирево, Кол-во помещений: 250, Кол-во нежилых помещений: 1, Год ввода в эксплуатацию: 1988, 3-комн, Кол-во жилых помещений: 249, Не присвоен, дом 14, корпус 1, нет, да, да, нет, нет, нет, Имеется, Грузовых лифтов: 0, Год постройки: 1988, Путевой проезд, 37.577714, 55.874365
Свяжитесь со мной на счет цены
10 дн.
T55S874365L37S577714T

На карте


Условия сделки

Источник


Старт продаж

Возможно заинтересует