Top.Mail.Ru

Ясный проезд, д. 8, к. 3

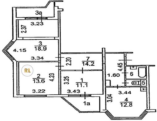
База каталог, Кол-во подъездов: 3, Имеется, П-44T, Москва, Южное Медведково, Пассажирский лифт: 3, От метро: 2380, Северо-Восточный, да, Наименьшее кол-во этажей: 17, Наибольшее кол-во этажей: 17, Отрадное, Кол-во помещений: 198, Кол-во нежилых помещений: 1, Год ввода в эксплуатацию: 2012, 3-комн, Кол-во жилых помещений: 197, Не присвоен, дом 8, корпус 3, нет, да, да, нет, нет, нет, Имеется, Грузовых лифтов: 3, Год постройки: 2012, Ясный проезд, 37.631083, 55.874501
Свяжитесь со мной на счет цены
10 дн.
T55S874501L37S631083T

На карте


Условия сделки

Источник


Старт продаж

Возможно заинтересует