Top.Mail.Ru

Ясный проезд, д. 16

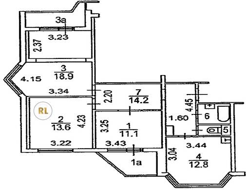
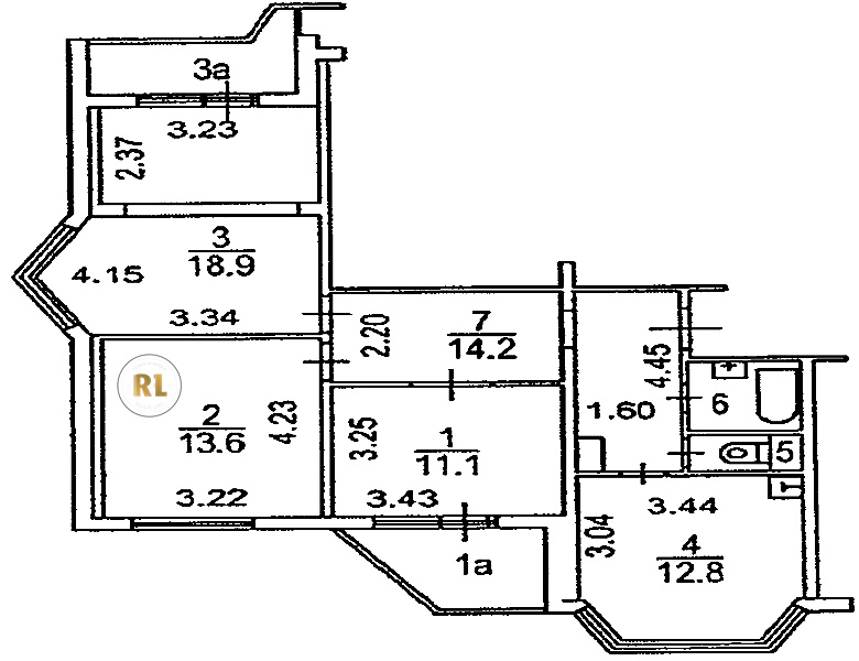
База каталог, Кол-во подъездов: 4, Отсутствует, П-44T, Москва, Южное Медведково, Площадь парковки: 0, Пассажирский лифт: 4, От метро: 2260, Северо-Восточный, нет, Наименьшее кол-во этажей: 17, Наибольшее кол-во этажей: 17, Отрадное, Кол-во помещений: 250, Кол-во нежилых помещений: 0, Год ввода в эксплуатацию: 2014, 3-комн, Кол-во жилых помещений: 250, Не присвоен, дом 16, нет, да, да, нет, нет, нет, Имеется, Грузовых лифтов: 4, Год постройки: 2014, Ясный проезд, 37.624346, 55.874854
Свяжитесь со мной на счет цены
10 дн.
T55S874854L37S624346T

На карте


Условия сделки

Источник


Старт продаж

Возможно заинтересует