Top.Mail.Ru

улица Проходчиков, д. 8

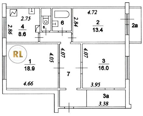
База каталог, Кол-во подъездов: 6, Отсутствует, П-46, Москва, Ярославский, Площадь парковки: 0, Пассажирский лифт: 12, От метро: 4800, Северо-Восточный, нет, Наименьшее кол-во этажей: 12, Наибольшее кол-во этажей: 12, Медведково, Кол-во помещений: 287, Кол-во нежилых помещений: 1, Год ввода в эксплуатацию: 1981, 3-комн, Кол-во жилых помещений: 286, Не присвоен, дом 8, нет, нет, нет, нет, нет, нет, Отсутствует, Грузовых лифтов: 0, Год постройки: 1981, улица Проходчиков, 37.722693, 55.875460
Свяжитесь со мной на счет цены
10 дн.
T55S875460L37S722693T

На карте


Условия сделки

Источник


Старт продаж

Возможно заинтересует