Top.Mail.Ru

Полярная ул., д. 13, к. 4

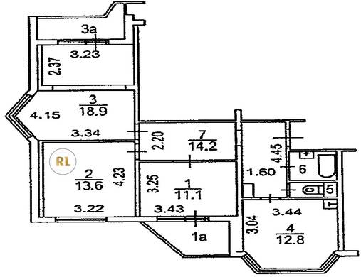
База каталог, Кол-во подъездов: 2, П-44К, Москва, Южное Медведково, Площадь парковки: 0, Пассажирский лифт: 2, От метро: 2480, Северо-Восточный, нет, Наименьшее кол-во этажей: 14, Наибольшее кол-во этажей: 14, Отрадное, Кол-во помещений: 106, Кол-во нежилых помещений: 2, Год ввода в эксплуатацию: 2015, 3-комн, Кол-во жилых помещений: 104, Не присвоен, дом 13, корпус 4, нет, да, да, нет, нет, нет, Грузовых лифтов: 2, Год постройки: 2015, Полярная улица, 37.631999, 55.875511
Свяжитесь со мной на счет цены
10 дн.
T55S875511L37S631999T

На карте


Условия сделки

Источник


Старт продаж

Возможно заинтересует