Top.Mail.Ru

проезд Шокальского, д. 11

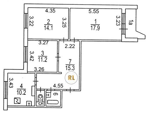
База каталог, Кол-во подъездов: 4, П-44-1/17, Москва, Южное Медведково, Площадь парковки: 0, Пассажирский лифт: 4, От метро: 1600, Северо-Восточный, нет, Наименьшее кол-во этажей: 17, Наибольшее кол-во этажей: 17, Бабушкинская, Кол-во помещений: 259, Кол-во нежилых помещений: 0, Год ввода в эксплуатацию: 2004, 3-комн, Кол-во жилых помещений: 259, Не присвоен, дом 11, нет, да, да, да, нет, нет, Имеется, Грузовых лифтов: 4, Год постройки: 2004, проезд Шокальского, 37.644432, 55.875657
Свяжитесь со мной на счет цены
10 дн.
T55S875657L37S644432T

На карте


Условия сделки

Источник


Старт продаж

Возможно заинтересует