Top.Mail.Ru

Новая ул., д. 14

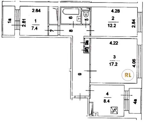
База каталог, Кол-во подъездов: 5, П-30, Москва, Западное Дегунино, Пассажирский лифт: 10, От метро: 2690, Северный, да, Наименьшее кол-во этажей: 14, Наибольшее кол-во этажей: 14, Селигерская, Кол-во помещений: 277, Кол-во нежилых помещений: 1, Год ввода в эксплуатацию: 1988, 3-комн, Кол-во жилых помещений: 276, Не присвоен, дом 14, нет, да, нет, нет, нет, нет, Грузовых лифтов: 0, Год постройки: 1988, Новая улица, 37.514724, 55.876385
15 100 000 Р
10 дн.
T55S876385L37S514724T
+

На карте


Условия сделки

Источник