Top.Mail.Ru

Базовская ул., д. 12

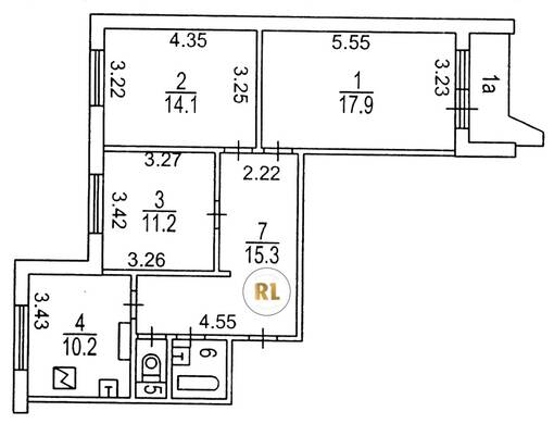
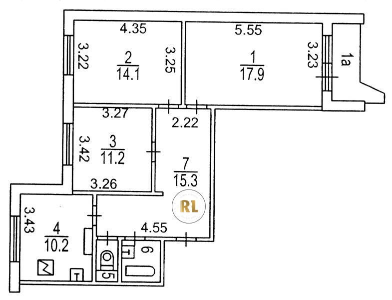
База каталог, Кол-во подъездов: 3, П-44, Москва, Западное Дегунино, Площадь парковки: 0, Пассажирский лифт: 6, От метро: 2590, Северный, нет, Наименьшее кол-во этажей: 17, Наибольшее кол-во этажей: 17, Ховрино, Кол-во помещений: 204, Кол-во нежилых помещений: 1, Год ввода в эксплуатацию: 1991, 3-комн, Кол-во жилых помещений: 203, D, дом 12, нет, да, да, нет, нет, нет, Грузовых лифтов: 0, Год постройки: 1991, Базовская улица, 37.511023, 55.876981
Свяжитесь со мной на счет цены
10 дн.
T55S876981L37S511023T

На карте


Условия сделки

Источник


Старт продаж

Возможно заинтересует