Top.Mail.Ru

улица Молодцова, д. 19, к. 2

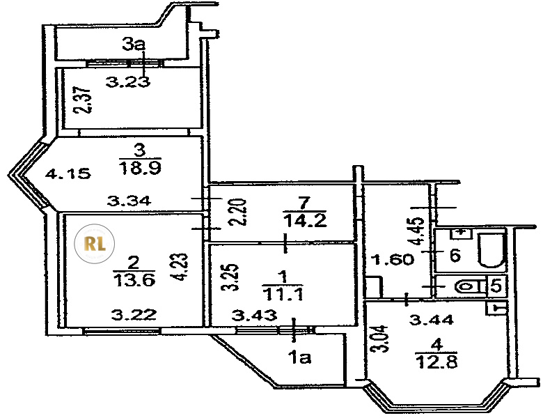
База каталог, Кол-во подъездов: 6, П-44T, Москва, Южное Медведково, Площадь парковки: 0, Пассажирский лифт: 6, От метро: 2460, Северо-Восточный, нет, Наименьшее кол-во этажей: 17, Наибольшее кол-во этажей: 17, Медведково, Кол-во помещений: 392, Кол-во нежилых помещений: 0, Год ввода в эксплуатацию: 2009, 3-комн, Кол-во жилых помещений: 392, Не присвоен, дом 19, корпус 2, нет, да, да, нет, нет, нет, Имеется, Грузовых лифтов: 6, Год постройки: 2009, улица Молодцова, 37.632368, 55.877092
Свяжитесь со мной на счет цены
10 дн.
T55S877092L37S632368T

На карте


Условия сделки

Источник


Старт продаж

Возможно заинтересует