Top.Mail.Ru

Дубнинская ул., д. 30Б

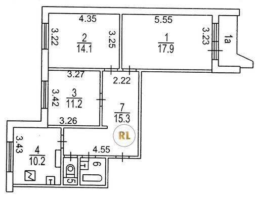
База каталог, Кол-во подъездов: 4, Имеется, П-44, Москва, Восточное Дегунино, Площадь парковки: 0, Пассажирский лифт: 4, От метро: 1740, Северный, нет, Наименьшее кол-во этажей: 17, Наибольшее кол-во этажей: 17, Селигерская, Кол-во помещений: 272, Кол-во нежилых помещений: 1, Год ввода в эксплуатацию: 1991, 3-комн, Кол-во жилых помещений: 271, Не присвоен, дом 30Б, нет, да, да, да, нет, нет, Имеется, Грузовых лифтов: 4, Год постройки: 1991, Дубнинская улица, 37.561374, 55.877097
Свяжитесь со мной на счет цены
10 дн.
T55S877097L37S561374T

На карте


Условия сделки

Источник


Старт продаж

Возможно заинтересует