Top.Mail.Ru

улица Малыгина, д. 3, к. 3

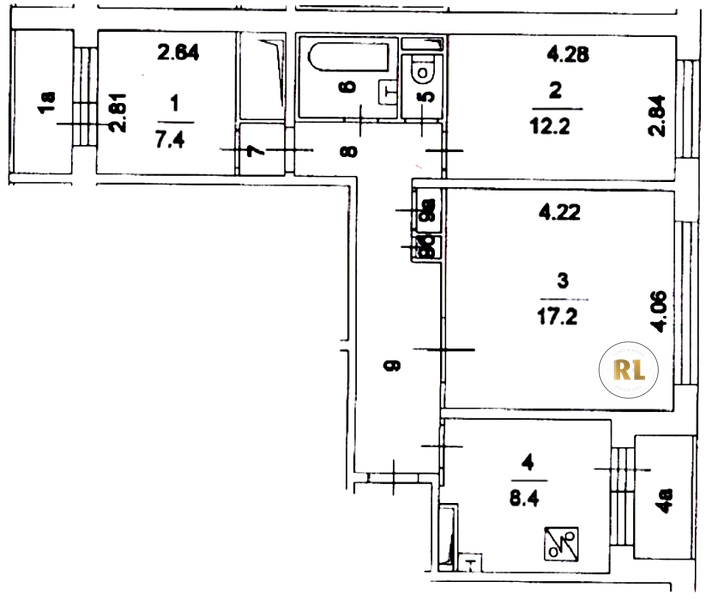
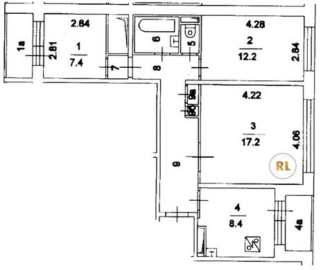
База каталог, Кол-во подъездов: 3, П-30, Москва, Лосиноостровский, Площадь парковки: 0, Пассажирский лифт: 3, От метро: 2660, Северо-Восточный, нет, Наименьшее кол-во этажей: 14, Наибольшее кол-во этажей: 14, Бабушкинская, Кол-во помещений: 171, Кол-во нежилых помещений: 4, Год ввода в эксплуатацию: 1994, 3-комн, Кол-во жилых помещений: 167, Не присвоен, дом 3, корпус 3, нет, да, нет, нет, нет, нет, Грузовых лифтов: 3, Год постройки: 1994, улица Малыгина, 37.697891, 55.877102
Свяжитесь со мной на счет цены
10 дн.
T55S877102L37S697891T

На карте


Условия сделки

Источник


Старт продаж

Возможно заинтересует