Top.Mail.Ru

улица Молодцова, д. 23, к. 2

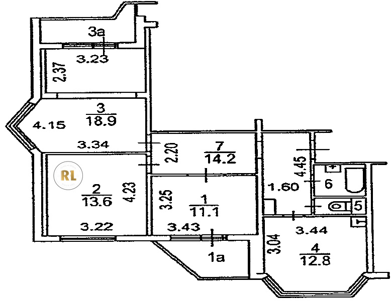
База каталог, Кол-во подъездов: 6, П-44T, Москва, Южное Медведково, Площадь парковки: 0, Пассажирский лифт: 6, От метро: 2630, Северо-Восточный, нет, Наименьшее кол-во этажей: 17, Наибольшее кол-во этажей: 17, Отрадное, Кол-во помещений: 392, Кол-во нежилых помещений: 0, Год ввода в эксплуатацию: 2010, 3-комн, Кол-во жилых помещений: 392, Не присвоен, дом 23, корпус 2, нет, да, нет, нет, нет, нет, Имеется, Грузовых лифтов: 6, Год постройки: 2010, улица Молодцова, 37.628119, 55.877152
Свяжитесь со мной на счет цены
10 дн.
T55S877152L37S628119T

На карте


Условия сделки

Источник


Старт продаж

Возможно заинтересует