Top.Mail.Ru

улица Молодцова, д. 3

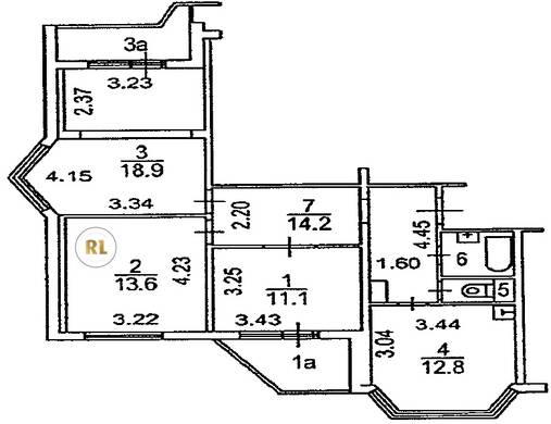
База каталог, Кол-во подъездов: 5, П-44T, Москва, Южное Медведково, Площадь парковки: 0, Пассажирский лифт: 5, От метро: 1740, Северо-Восточный, нет, Наименьшее кол-во этажей: 17, Наибольшее кол-во этажей: 17, Бабушкинская, Кол-во помещений: 330, Кол-во нежилых помещений: 0, Год ввода в эксплуатацию: 2003, 3-комн, Кол-во жилых помещений: 330, Не присвоен, дом 3, нет, да, да, да, нет, нет, Имеется, Грузовых лифтов: 5, Год постройки: 2003, улица Молодцова, 37.643318, 55.877183
Свяжитесь со мной на счет цены
10 дн.
T55S877183L37S643318T

На карте


Условия сделки

Источник


Старт продаж

Возможно заинтересует