Top.Mail.Ru

Базовская ул., д. 14

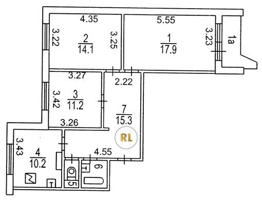
База каталог, Кол-во нежилых помещений: 1, П-44, Москва, Западное Дегунино, Пассажирский лифт: 6, От метро: 2710, Северный, да, Наименьшее кол-во этажей: 17, Наибольшее кол-во этажей: 17, Ховрино, Кол-во помещений: 407, Кол-во подъездов: 6, 3-комн, Год ввода в эксплуатацию: 1988, Кол-во жилых помещений: 406, D, дом 14, нет, да, нет, нет, нет, нет, Имеется, Грузовых лифтов: 6, Год постройки: 1988, Базовская улица, 37.512425, 55.877198
Свяжитесь со мной на счет цены
10 дн.
T55S877198L37S512425T

На карте


Условия сделки

Источник


Старт продаж

Возможно заинтересует