Top.Mail.Ru

улица Молодцова, д. 27, к. 3

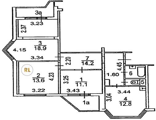
База каталог, Кол-во подъездов: 3, П-44T, Москва, Южное Медведково, Площадь парковки: 0, Пассажирский лифт: 3, От метро: 2550, Северо-Восточный, нет, Наименьшее кол-во этажей: 17, Наибольшее кол-во этажей: 17, Отрадное, Кол-во помещений: 197, Кол-во нежилых помещений: 0, Год ввода в эксплуатацию: 2007, 3-комн, Кол-во жилых помещений: 197, Не присвоен, дом 27, корпус 3, нет, да, да, нет, нет, нет, Имеется, Грузовых лифтов: 3, Год постройки: 2007, улица Молодцова, 37.626268, 55.877354
Свяжитесь со мной на счет цены
10 дн.
T55S877354L37S626268T

На карте


Условия сделки

Источник


Старт продаж

Возможно заинтересует