Top.Mail.Ru

улица 800-летия Москвы, д. 14

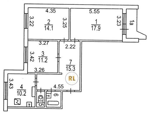
База каталог, Кол-во подъездов: 4, Имеется, П-44, Москва, Восточное Дегунино, Площадь парковки: 0, Пассажирский лифт: 4, От метро: 1350, Северный, нет, Наименьшее кол-во этажей: 17, Наибольшее кол-во этажей: 17, Селигерская, Кол-во помещений: 265, Кол-во нежилых помещений: 5, Год ввода в эксплуатацию: 1984, 3-комн, Кол-во жилых помещений: 260, D, дом 14, нет, да, да, да, да, нет, Имеется, Грузовых лифтов: 4, Год постройки: 1984, улица 800-летия Москвы, 37.548941, 55.878016
Свяжитесь со мной на счет цены
10 дн.
T55S878016L37S548941T

На карте


Условия сделки

Источник


Старт продаж

Возможно заинтересует