Top.Mail.Ru

улица Молодцова, д. 27, к. 2

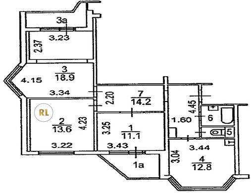
База каталог, Кол-во подъездов: 2, П-44M, Москва, Южное Медведково, Площадь парковки: 0, Пассажирский лифт: 2, От метро: 2590, Северо-Восточный, нет, Наименьшее кол-во этажей: 16, Наибольшее кол-во этажей: 16, Отрадное, Кол-во помещений: 120, Кол-во нежилых помещений: 0, Год ввода в эксплуатацию: 2007, 3-комн, Кол-во жилых помещений: 120, Не присвоен, дом 27, корпус 2, нет, да, да, нет, нет, нет, Имеется, Грузовых лифтов: 2, Год постройки: 2007, улица Молодцова, 37.626313, 55.878097
Свяжитесь со мной на счет цены
10 дн.
T55S878097L37S626313T

На карте


Условия сделки

Источник


Старт продаж

Возможно заинтересует