Top.Mail.Ru

Ясный проезд, д. 32

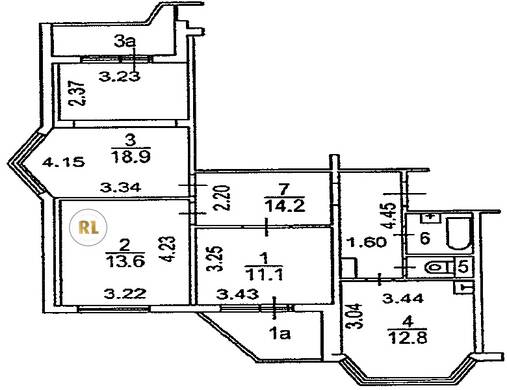
База каталог, Кол-во подъездов: 3, Имеется, П-44T, Москва, Южное Медведково, Площадь парковки: 0, Пассажирский лифт: 3, От метро: 2300, Северо-Восточный, нет, Наименьшее кол-во этажей: 12, Наибольшее кол-во этажей: 17, Отрадное, Кол-во помещений: 183, Кол-во нежилых помещений: 11, Год ввода в эксплуатацию: 2015, 3-комн, Кол-во жилых помещений: 172, С, дом 32, нет, да, да, нет, нет, нет, Имеется, Грузовых лифтов: 3, Год постройки: 2015, Ясный проезд, 37.620052, 55.878384
Свяжитесь со мной на счет цены
10 дн.
T55S878384L37S620052T

На карте


Условия сделки

Источник


Старт продаж

Возможно заинтересует