Top.Mail.Ru

улица Егора Абакумова, д. 2

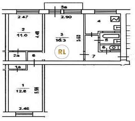
База каталог, Кол-во подъездов: 3, Имеется, I-511, Москва, Ярославский, Площадь парковки: 0, Пассажирский лифт: 0, От метро: 4200, Северо-Восточный, нет, Наименьшее кол-во этажей: 5, Наибольшее кол-во этажей: 5, Медведково, Кол-во помещений: 130, Кол-во нежилых помещений: 0, Год ввода в эксплуатацию: 1969, 3-комн, Кол-во жилых помещений: 130, Не присвоен, дом 2, нет, нет, нет, нет, нет, нет, Имеется, Грузовых лифтов: 0, Год постройки: 1969, улица Егора Абакумова, 37.717726, 55.878511
Свяжитесь со мной на счет цены
10 дн.
T55S878511L37S717726T

На карте


Условия сделки

Источник


Старт продаж

Возможно заинтересует