Top.Mail.Ru

улица Молодцова, д. 6

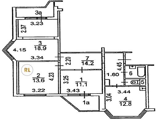
База каталог, Кол-во подъездов: 3, Имеется, П-44T, Москва, Северное Медведково, Площадь парковки: 0, Пассажирский лифт: 3, От метро: 1880, Северо-Восточный, нет, Наименьшее кол-во этажей: 17, Наибольшее кол-во этажей: 17, Медведково, Кол-во помещений: 202, Кол-во нежилых помещений: 5, Год ввода в эксплуатацию: 2009, 3-комн, Кол-во жилых помещений: 197, Не присвоен, дом 6, нет, да, да, да, нет, нет, Имеется, Грузовых лифтов: 3, Год постройки: 2008, улица Молодцова, 37.639752, 55.878864
Свяжитесь со мной на счет цены
10 дн.
T55S878864L37S639752T

На карте


Условия сделки

Источник


Старт продаж

Возможно заинтересует