Top.Mail.Ru

Челюскинская ул., д. 2

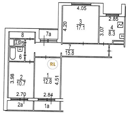
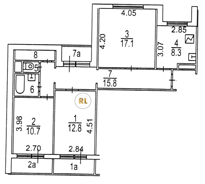
База каталог, Кол-во подъездов: 3, П-55, Москва, Лосиноостровский, Пассажирский лифт: 6, От метро: 2950, Северо-Восточный, да, Наименьшее кол-во этажей: 14, Наибольшее кол-во этажей: 14, Бабушкинская, Кол-во помещений: 139, Кол-во нежилых помещений: 2, Год ввода в эксплуатацию: 1987, 3-комн, Кол-во жилых помещений: 137, дом 2, нет, да, нет, нет, нет, нет, Грузовых лифтов: 0, Год постройки: 1987, Челюскинская улица, 37.700873, 55.879117
Свяжитесь со мной на счет цены
10 дн.
T55S879117L37S700873T

На карте


Условия сделки

Источник


Старт продаж

Возможно заинтересует