Top.Mail.Ru

улица 800-летия Москвы, д. 22, к. 2

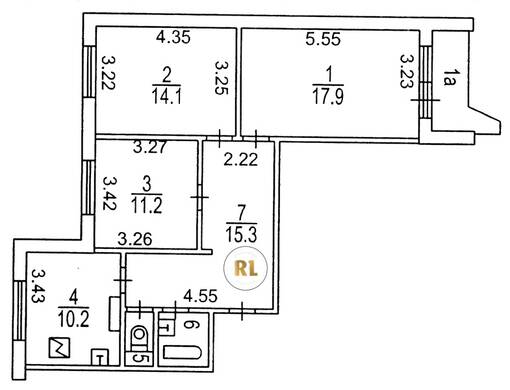
База каталог, Кол-во подъездов: 2, П-44, Москва, Восточное Дегунино, Пассажирский лифт: 2, От метро: 1750, Северный, да, Наименьшее кол-во этажей: 1, Наибольшее кол-во этажей: 17, Селигерская, Кол-во помещений: 128, Кол-во нежилых помещений: 1, Год ввода в эксплуатацию: 1985, 3-комн, Кол-во жилых помещений: 127, дом 22, корпус 2, нет, да, да, да, нет, нет, Грузовых лифтов: 2, Год постройки: 1985, улица 800-летия Москвы, 37.556541, 55.879202
Свяжитесь со мной на счет цены
10 дн.
T55S879202L37S556541T

На карте


Условия сделки

Источник


Старт продаж

Возможно заинтересует