Top.Mail.Ru

Ярославское шоссе, д. 144

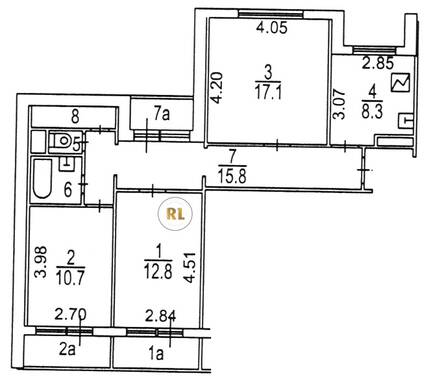
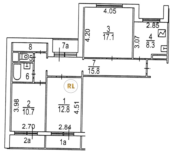
База каталог, Кол-во подъездов: 8, Имеется, П-55, Москва, Ярославский, Площадь парковки: 0, Пассажирский лифт: 16, От метро: 4800, Северо-Восточный, нет, Наименьшее кол-во этажей: 14, Наибольшее кол-во этажей: 14, Медведково, Кол-во помещений: 347, Кол-во нежилых помещений: 10, Год ввода в эксплуатацию: 1990, 3-комн, Кол-во жилых помещений: 337, Не присвоен, дом 144, нет, нет, нет, нет, нет, нет, Имеется, Грузовых лифтов: 0, Год постройки: 1990, Ярославское шоссе, 37.723169, 55.879263
Свяжитесь со мной на счет цены
10 дн.
T55S879263L37S723169T

На карте


Условия сделки

Источник


Старт продаж

Возможно заинтересует