Top.Mail.Ru

улица Егора Абакумова, д. 8

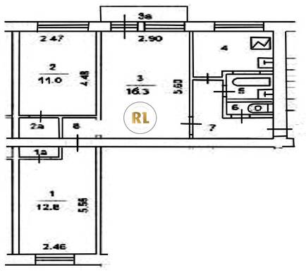
База каталог, Кол-во подъездов: 4, Имеется, I-511, Москва, Ярославский, Площадь парковки: 0, Пассажирский лифт: 0, От метро: 4100, Северо-Восточный, нет, Наименьшее кол-во этажей: 5, Наибольшее кол-во этажей: 5, Медведково, Кол-во помещений: 80, Кол-во нежилых помещений: 0, Год ввода в эксплуатацию: 1962, 3-комн, Кол-во жилых помещений: 80, Не присвоен, дом 8, нет, нет, нет, нет, нет, нет, Имеется, Грузовых лифтов: 0, Год постройки: 1962, улица Егора Абакумова, 37.716037, 55.879319
Свяжитесь со мной на счет цены
10 дн.
T55S879319L37S716037T

На карте


Условия сделки

Источник


Старт продаж

Возможно заинтересует