Top.Mail.Ru

улица 800-летия Москвы, д. 24

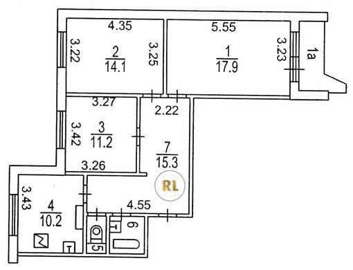
База каталог, Кол-во подъездов: 2, Имеется, П-44, Москва, Восточное Дегунино, Площадь парковки: 0, Пассажирский лифт: 2, От метро: 1890, Северный, нет, Наименьшее кол-во этажей: 17, Наибольшее кол-во этажей: 17, Селигерская, Кол-во помещений: 129, Кол-во нежилых помещений: 1, Год ввода в эксплуатацию: 1992, 3-комн, Кол-во жилых помещений: 128, Не присвоен, дом 24, нет, да, да, да, нет, нет, Имеется, Грузовых лифтов: 2, Год постройки: 1992, улица 800-летия Москвы, 37.559047, 55.879379
Свяжитесь со мной на счет цены
10 дн.
T55S879379L37S559047T

На карте


Условия сделки

Источник


Старт продаж

Возможно заинтересует