Top.Mail.Ru

улица 800-летия Москвы, д. 32

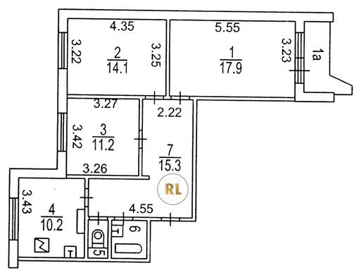
База каталог, Кол-во нежилых помещений: 0, П-44, Москва, Восточное Дегунино, Пассажирский лифт: 4, От метро: 2280, Северный, да, Наименьшее кол-во этажей: 1, Наибольшее кол-во этажей: 17, Селигерская, Кол-во помещений: 260, Кол-во подъездов: 4, 3-комн, Год ввода в эксплуатацию: 1991, Кол-во жилых помещений: 260, Не присвоен, дом 32, нет, да, да, нет, нет, нет, Имеется, Грузовых лифтов: 4, Год постройки: 1991, улица 800-летия Москвы, 37.565443, 55.879440
Свяжитесь со мной на счет цены
10 дн.
T55S879440L37S565443T

На карте


Условия сделки

Источник


Старт продаж

Возможно заинтересует