Top.Mail.Ru

улица 800-летия Москвы, д. 22, к. 1

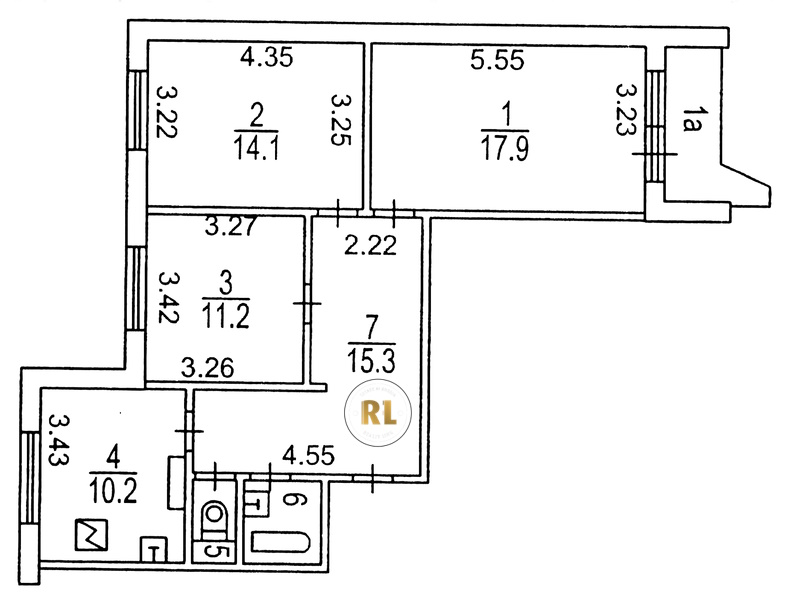
База каталог, Кол-во подъездов: 2, П-44, Москва, Восточное Дегунино, Площадь парковки: 0, Пассажирский лифт: 2, От метро: 1850, Северный, нет, Наименьшее кол-во этажей: 17, Наибольшее кол-во этажей: 17, Селигерская, Кол-во помещений: 128, Кол-во нежилых помещений: 0, Год ввода в эксплуатацию: 1985, 3-комн, Кол-во жилых помещений: 128, Не присвоен, дом 22, корпус 1, нет, да, да, да, нет, нет, Имеется, Грузовых лифтов: 2, Год постройки: 1985, улица 800-летия Москвы, 37.555885, 55.879485
Свяжитесь со мной на счет цены
10 дн.
T55S879485L37S555885T

На карте


Условия сделки

Источник


Старт продаж

Возможно заинтересует