Top.Mail.Ru

Холмогорская ул., д. 3

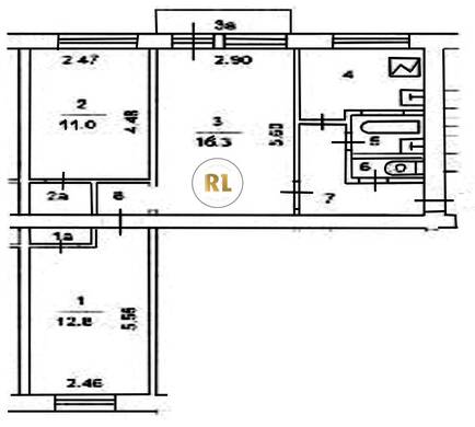
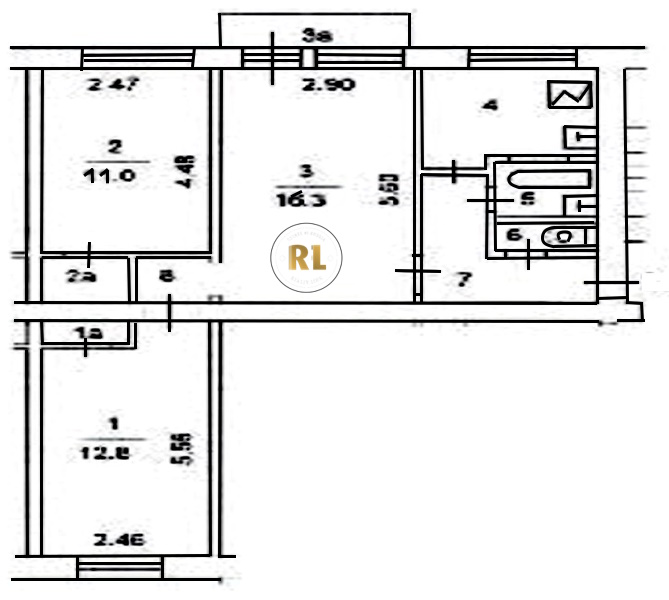
База каталог, Кол-во подъездов: 3, Имеется, I-511, Москва, Ярославский, Площадь парковки: 0, Пассажирский лифт: 0, От метро: 4200, Северо-Восточный, нет, Наименьшее кол-во этажей: 5, Наибольшее кол-во этажей: 5, Медведково, Кол-во помещений: 130, Кол-во нежилых помещений: 0, Год ввода в эксплуатацию: 1970, 3-комн, Кол-во жилых помещений: 130, Не присвоен, дом 3, нет, нет, нет, нет, нет, нет, Имеется, Грузовых лифтов: 0, Год постройки: 1970, Холмогорская улица, 37.718570, 55.879829
Свяжитесь со мной на счет цены
10 дн.
T55S879829L37S718570T

На карте


Условия сделки

Источник


Старт продаж

Возможно заинтересует