Top.Mail.Ru

проезд Шокальского, д. 25

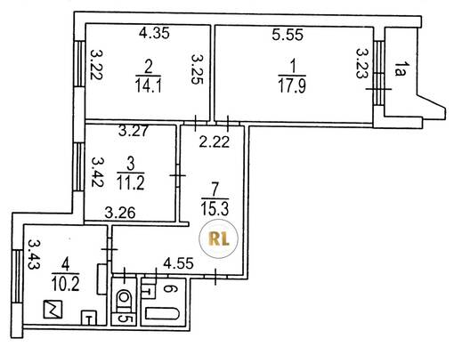
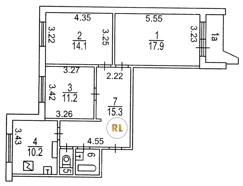
База каталог, Кол-во подъездов: 3, П-44, Москва, Северное Медведково, Площадь парковки: 0, Пассажирский лифт: 3, От метро: 1410, Северо-Восточный, нет, Наименьшее кол-во этажей: 14, Наибольшее кол-во этажей: 14, Медведково, Кол-во помещений: 165, Кол-во нежилых помещений: 4, Год ввода в эксплуатацию: 2007, 3-комн, Кол-во жилых помещений: 161, Не присвоен, дом 25, нет, да, да, да, да, нет, Имеется, Грузовых лифтов: 3, Год постройки: 2007, проезд Шокальского, 37.644657, 55.880308
Свяжитесь со мной на счет цены
10 дн.
T55S880308L37S644657T

На карте


Условия сделки

Источник


Старт продаж

Возможно заинтересует