Top.Mail.Ru

Шокальского пр., д.27, к.2

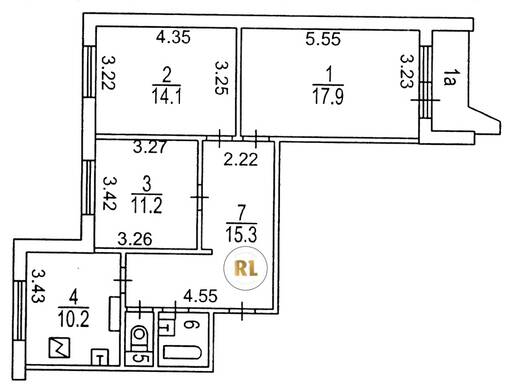
База каталог, Кол-во подъездов: 2, П-44, Москва, Северное Медведково, Площадь парковки: 0, Пассажирский лифт: 2, От метро: 1420, Северо-Восточный, нет, Наименьшее кол-во этажей: 13, Наибольшее кол-во этажей: 13, Медведково, Кол-во помещений: 104, Кол-во нежилых помещений: 8, Год ввода в эксплуатацию: 2017, 3-комн, Кол-во жилых помещений: 96, Не присвоен, дом 27, к.2, нет, да, да, да, да, нет, Грузовых лифтов: 2, Год постройки: 2017, Шокальского пр., 37.644369, 55.881056
Свяжитесь со мной на счет цены
10 дн.
T55S881056L37S644369T

На карте


Условия сделки

Источник


Старт продаж

Возможно заинтересует