Top.Mail.Ru

улица Маршала Федоренко, д. 8, к. 4

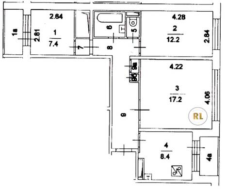
База каталог, Кол-во подъездов: 4, П-30, Москва, Западное Дегунино, Площадь парковки: 125, Пассажирский лифт: 8, От метро: 1110, Северный, да, Наименьшее кол-во этажей: 12, Наибольшее кол-во этажей: 12, Ховрино, Кол-во помещений: 192, Кол-во нежилых помещений: 1, Год ввода в эксплуатацию: 1981, 3-комн, Кол-во жилых помещений: 191, E, дом 8, корпус 4, нет, да, да, да, да, нет, Имеется, Грузовых лифтов: 0, Год постройки: 1981, улица Маршала Федоренко, 37.493174, 55.881616
Свяжитесь со мной на счет цены
10 дн.
T55S881616L37S493174T

На карте


Условия сделки

Источник


Старт продаж

Возможно заинтересует