Top.Mail.Ru

проезд Шокальского, д. 39, к. 1

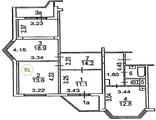
База каталог, Кол-во подъездов: 2, П-44T, Москва, Северное Медведково, Площадь парковки: 0, Пассажирский лифт: 2, От метро: 960, Северо-Восточный, нет, Наименьшее кол-во этажей: 14, Наибольшее кол-во этажей: 14, Медведково, Кол-во помещений: 107, Кол-во нежилых помещений: 3, Год ввода в эксплуатацию: 2006, 3-комн, Кол-во жилых помещений: 104, Не присвоен, дом 39, корпус 1, нет, да, да, да, да, да, Имеется, Грузовых лифтов: 2, Год постройки: 2006, проезд Шокальского, 37.651403, 55.881727
Свяжитесь со мной на счет цены
10 дн.
T55S881727L37S651403T

На карте


Условия сделки

Источник


Старт продаж

Возможно заинтересует