Top.Mail.Ru

проезд Шокальского, д. 49, к. 1

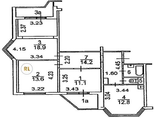
База каталог, Кол-во подъездов: 6, П-44T, Москва, Северное Медведково, Площадь парковки: 0, Пассажирский лифт: 6, От метро: 660, Северо-Восточный, нет, Наименьшее кол-во этажей: 14, Наибольшее кол-во этажей: 14, Медведково, Кол-во помещений: 322, Кол-во нежилых помещений: 10, Год ввода в эксплуатацию: 2008, 3-комн, Кол-во жилых помещений: 312, Не присвоен, дом 49, корпус 1, нет, да, да, да, да, да, Имеется, Грузовых лифтов: 6, Год постройки: 2008, проезд Шокальского, 37.655634, 55.882227
Свяжитесь со мной на счет цены
10 дн.
T55S882227L37S655634T

На карте


Условия сделки

Источник


Старт продаж

Возможно заинтересует