Top.Mail.Ru

Стандартная ул., д. 21, к. 1

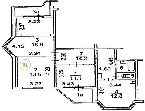
База каталог, Кол-во подъездов: 4, П-44T, Москва, Алтуфьевский, Площадь парковки: 542, Пассажирский лифт: 4, От метро: 2140, Северо-Восточный, да, Наименьшее кол-во этажей: 17, Наибольшее кол-во этажей: 17, Бибирево, Кол-во помещений: 262, Кол-во нежилых помещений: 0, Год ввода в эксплуатацию: 2014, 3-комн, Кол-во жилых помещений: 262, Не присвоен, дом 21, корпус 1, нет, да, да, нет, нет, нет, Имеется, Грузовых лифтов: 4, Год постройки: 2013, Стандартная улица, 37.575693, 55.882409
Свяжитесь со мной на счет цены
10 дн.
T55S882409L37S575693T

На карте


Условия сделки

Источник


Старт продаж

Возможно заинтересует